新築一戸建て 前橋市上新田町
所在地
前橋市上新田町
4,500万円
27.55坪
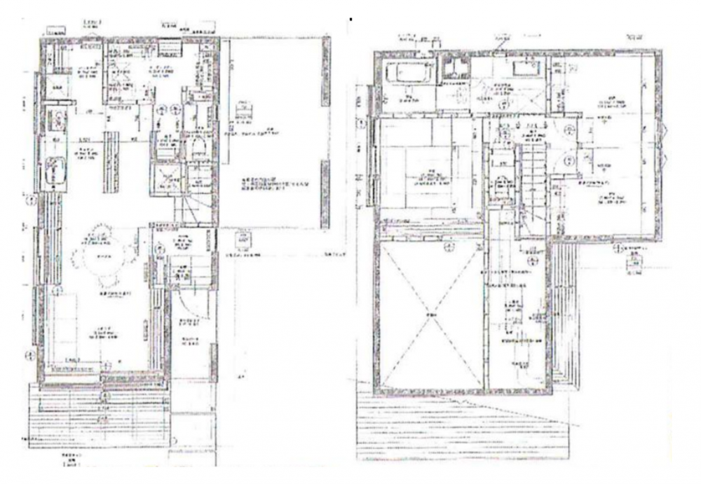
和 7 洋 4.8・4.8 LDK 16
和風新築建売住宅!・全館空調 !
壁を漆喰珪藻土仕上げにしています!
■角地の物件です。
■都市ガス・上下水道対応!
■小・中学校まで徒歩13分圏内!
■駐車3台可能です!
月々の
支払例
支払例
万円
年
%
円
※群馬銀行/借入金4,500万円、返済期間35年、金利0.975%全期間重視コース(保証料銀行払方式※)※ 2025年2月にお借入れの場合)の場合
※審査により金利は変わる可能性があります。
物件概要
- 交通
-
湘南新宿高 新前橋駅 まで 徒歩30分
- 接道状況
-
南側 公道6.2m 間口約8.5m
東側 私道4m 間口約15.5m - 土地面積
- 公簿 177.11㎡ (53.57坪)
- 建物面積
- 91.08㎡ (27.55坪)
- 築年数
- 2025年 (令和7) 4月
- 建ぺい率
- 60%
- 容積率
- 200%
- 土地権利
- 所有権
- 構造および階数
- 木造 地上2階建
- 小学校区
- 新田 ( 1000m )
- 中学校区
- 東 ( 1000m )
- 私道負担
- なし
- 地目
- 宅地
- 現況
- 空
- 引渡時期
- 即時
- 駐車場
- 有 普通3台
- 上水道
- 公共
- 下水道
- 公共
- ガス
- 都市ガス
- 都市計画
- 市街化区域
- 用途地域
- 1種住居
- 設備・条件
- 床暖房、システムキッチン、IHクッキングヒーター、モニタ付インターホン、洗浄便座、ウォークインクローゼット、複層ガラス、追い焚き、駐車場3台分、トイレ2箇所、エレベーター、照明器具付き、庭あり、新築時・増改築時の設計図書、ウッドデッキ、壁(漆喰珪藻土塗り壁)
- 備考
- 取引態様
- 仲介

